Goorstraat 2 bus 1.1, 2400 MOL
Beschrijving
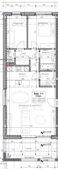
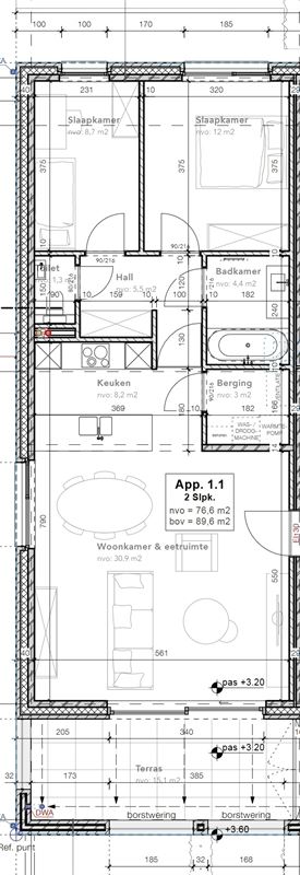
Ruim appartement op de eerste verdieping met 2 slaapkamers, op een unieke rustige ligging te Mol Achterbos. Een ondergrondse autostaanplaats is inbegrepen in de prijs. Tweede staanplaats mits € 15.000 is mogelijk.
Er zijn appartementen met 1, 2 of 3 slaapkamers. De appartementen worden voorzien van vloerverwarming met warmtepomp , zonnepanelen , ventilatiesysteem. Er zijn 2 liften in het gebouw voorzien.
KOOP NU & BETAAL PAS BIJ DE OPLEVERING.
Plannen en lastenboek te downloaden op www.vanheesimmo.be
Inspraak in de afwerking is mogelijk.
Er is een gemeenschappelijke fietsenstalling.
Mol centrum op slechts 3 km. Ook snel bereikbaar via nieuw fietspad.
DE WERKEN ZIJN GESTART !
Prijs: € 280.000


Contacteer ons
Algemeen
Type
Appartement
Prijs
€ 280.000
Aantal slaapkamers
2
Aantal badkamers
1
Adres
Goorstraat 2 bus 1.1, 2400 MOL
Bewoonbare opp.
90 m²
Oppervlakte terras
10 m²
Bebouwing
Niet meegedeeld
Staat van het gebouw
Nieuwbouw
Dossierstukken
Financiële Info
Prijs
€ 280.000
Grondaandeel
€ 68.000
Gebouw
€ 212.000
BTW Gebouw
€ 44.520
Registratierechten
€ 8.160
Honorarium notaris
€ 3.802
Honorarium notaris inc BTW
€ 4.600
Totale kosten
€ 57.280
Totale kostprijs
€ 337.280
Energie certificaat
EPC
In aanvraag
E-peil
30
Comfort
Verwarming
Warmtepomp
Commentaar
zonnepanelen voorzien volgens EPB
Keuken
Volledig ingebouwd
Beglazing
Dubbel
Raamkozijn
pvc
Type dak
Niet meegedeeld
Dakbedekking
Pannen
Ruimtelijke ordening
Bouwvergunning verkregen
Ja
Verkavelingsvergunning
Ja
Bestemming
Woongebied
G-score
Klasse A
P-score
Klasse A
Erfgoed
Nee